SPI Editors

최차장
최차장
건축사 최차장은 10년 동안 건축설계를 하며 건축주의 의도를 읽지 못해 혼란을 겪었다. 최근 4년 동안은 시행사에서 건축주 대변인으로 활동 중인데, 의도를 전달하는 과정에서도 어려움을 겪고 있다. 언젠가 본인의 프로젝트에 활용하고자 여러 도시와 지역을 돌아다니며 건물의 목적값 구현 과정을 상상하고, 그 해석 내용을 글로 풀어낸다.

최차장의 건축 ‘설(設)’전
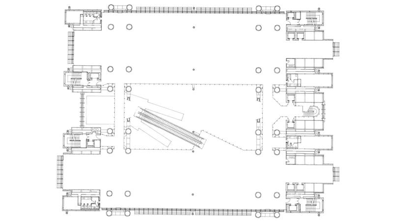
"대체 건축주가 누구시길래, 이렇게 거대한 미술관을 만들었을까?" / 홍콩 M+, 헤르조그 & 드 뫼롱
최차장
2025.10.28 07:30

FREE
최차장의 건축 ‘설(設)’전
“화성에 건물을 짓는다면 누가 설계를 하게 될까?” 홍콩상하이은행(HSBC) 본관, 노먼 포스터 설계
최차장
2025.09.30 07:30
1/1
아티클 에디터를 소개합니다
